Lot 4 - 22/22A McKean Road, Oldbury, West Midlands, B69 4AY

  • Unconditional Online Auction Sale
  • Guide Price* : £460,000+
  • Bedrooms: 7
  • Bathrooms: 7
  • Reception Rooms: 1

A fully tenanted six ensuite bedroom HMO and one bedroom self contained flat let to working professionals producing £62,652 per annum

Description

• Freehold end-terrace house
• 6 bedroom all ensuite HMO with 3 kitchenettes
• 1 bedroom self-contained flat on the ground floor
• Rental income of £52,152 per annum for the HMO and £10,500 per annum for the flat
• Total income of £62,652 per annum
• Representing an impressive gross yield of 13.6% on guide

Location

Situated on the well-connected McKean Road in Oldbury, the property benefits from convenient access via the A4123 and M5. Providing direct routes to Oldbury town centre, Sandwell and West Birmingham Hospitals NHS Trust, and Birmingham city centre. Set within a well-established residential area, it is close to a range of local amenities including shops, schools, and parks.

Transport links are provided by Sandwell & Dudley Station

HMO Compliance

- HMO Licence
- EICR
- Fire Risk Assessment
- Building Regulations Certificate
- Emergency Lighting Test
- Fire Alarm Test Certificate
- Gas Safety Certificate

Copies of these documents can be found within the legal pack

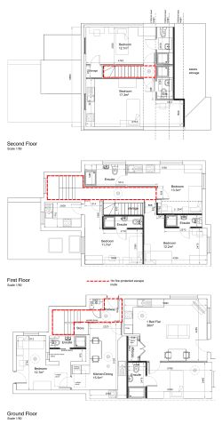
Accommodation

Room Number Floor Accommodation Tenancy Info Rent Per Annum
1 Ground Ensuite HMO room with access to communal kitchen and dining space 6 month AST starting from 7th November 2025 £7,788
2 First Ensuite HMO room with kitchenette and access to communal kitchen and dining space 6 month AST starting from 1st October 2024 £8,988
3 First Ensuite HMO room with kitchenette and access to communal kitchen and dining space 6 month AST starting from 18th June 2025 £9,588
4 First Ensuite HMO room with access to communal kitchen and dining space 6 month AST starting from 2nd January 2026 £8,388
5 Second Ensuite HMO room with access to communal kitchen and dining space 6 month AST starting from 30th May 2025 £7,500
6 Second Ensuite HMO room with kitchenette and access to communal kitchen and dining space 6 month AST starting from 7th September 2022 £9,900
Flat Ground 1 bedroom self-contained flat with separate entrance and front yard 12 month AST starting from 19th December 2024 £10,500

Vendors Solicitor
Sham Michael
02032920669

* Guide Prices are provided as an indication of each seller's minimum expectation (also known as the 'Reserve Price'). This is not necessarily a figure which a property will sell for and may change at any time prior to the auction. Every property will be offered subject to a Reserve Price (this is the sellers minimum expectation) which will be set within either a Guide Range or no more than 10% above a single figure Guide Price.

The Buyers Administration Fee of £1,500 (inclusive of VAT) is a separate charge payable in addition to the price a Lot sells for. In addition, the Guide Price does not include VAT on the sale price, or any additional costs, charges or encumbrances that might apply to some Lots and/or some buyers. The Special Conditions of Sale of the seller, and any applicable Addendum, will state if there are other costs, charges or encumbrances and whether the seller has elected to charge VAT on the sale price.

To participate in the sale, HMO X Auctions must hold a minimum amount from all bidders. This participation amount and administration fee are fully refundable in the event that you are not the successful purchaser. For example, a participation fee of £5,000 comprises £3,500 relating to your bidder security (which forms part of your 10% deposit payment) and the buyers administration fee of £1,500 (inclusive of VAT).

Please note that Lots may be sold or withdrawn prior to auction without prior notice.

Any information provided by HMO X Auctions or the seller, whether in writing or orally, does not constitute a representation, condition, or warranty. The information given is for illustrative purposes only and should not be considered as fact. Any mistakes, omissions, inaccuracies, or mis-descriptions in the information provided will not give rise to any legal action or compensation against HMO X Auctions or the seller.

All bidders must satisfy themselves by carrying out their own independent due diligence, inspections or otherwise as to the correctness of any and all of the information, statements, descriptions, quantity or measurements contained in any such sales particulars, webpage, brochure, catalogue, email, letter, report or hand out issued by or on behalf of HMO X Auctions or the seller.

Loading the bidding panel...

Financing

Looking to purchase at auction but need the right finance in place? We’ve partnered with Roma Finance to help our buyers secure fast and flexible funding solutions tailored for HMOs.

Get in touch with Roma Finance today to explore the best financing options for your next HMO purchase

HMO X - Roma Finance

Vendors Solicitor

Sham Michael
02032920669

Agreement Documents

Legal Documents

Log in to view legal documents

Related Documents

Make an Enquiry

Submit an enquiry and someone will be in contact shortly.

 
*  
*  
*
*
*

Share