Lot 9 - 15-17 Earl Street, Warrington, Cheshire, WA2 7BH

  • Unconditional Online Auction Sale
  • Guide Price* : £230,000+
  • Bedrooms: 4
  • Bathrooms: 4
  • Reception Rooms: 1

A fully tenanted four bedroom HMO, with a lower commercial unit producing £33,240 per annum

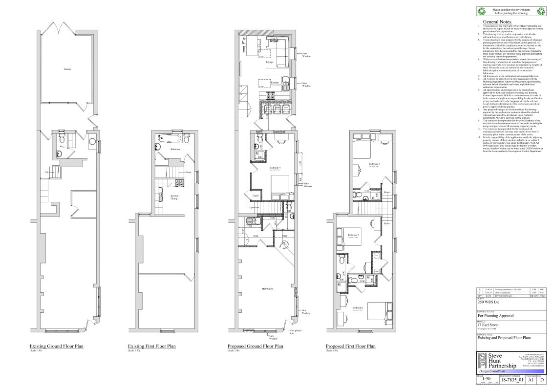
Description

• End-terrace mixed-use property
• 4 bedroom ensuite HMO with commercial unit on the ground floor
• Communal kitchen and reception room
• Fully renovated to a high standard throughout
• 4 bedroom HMO with a rental income of £26,100 per annum
• Ground floor commercial unit with lease in place for a rental income of £7,140 per annum
• Impressive 14.4% yield on guide price

Location

Situated on the well-connected Earl Street in Warrington, the property benefits from convenient access via the A49 and A50. Providing direct routes to Warrington town centre, Warrington Hospital, and the University of Chester (Warrington campus). Set within a well-established area, it is close to a range of local amenities including shops, schools, and parks.

Transport links are provided by both Warrington Bank Quay and Warrington Central Rail Stations.

Planning

Planning granted through Warrington Borough Council: Ref Warrington/2018/33927 | (21-11-2018)

Full Planning - Change of use of part of building to form HMO (Class C4) including external alterations and extension (Resubmission of 2018/33927)

HMO Compliance

- EICR (Electrical Installation Condition Report)
- Fire Risk Assessment
- Emergency Lighting Test Certificate
- Fire Alarm Test Certificate
- Gas Safety Certificate
- Planning Permission

Copies of these documents can be found within the legal pack

Lease Start Date

28/06/1899

Lease Duration

999 years (873 years unexpired)

Accommodation

Room Number Floor Accommodation Tenancy Info Rent Per Annum
1 Ground Ensuite HMO room with access to communal kitchen and reception room 6 month AST starting from 27th March 2024 £6,600
2 First Ensuite HMO room with access to communal kitchen and reception room 6 month AST starting from 16th September 2024 £6,600
3 First Ensuite HMO room with access to communal kitchen and reception room 6 month AST starting from 6th January 2024 £6,300
4 First Ensuite HMO room with access to communal kitchen and reception room 6 month AST starting from 7th November 2022 £6,600
Lease in place for ground floor weight loss studio with a rental income of £7,140 per annum

Vendors Solicitor
Joy Savill
02075047071

* Guide Prices are provided as an indication of each seller's minimum expectation (also known as the 'Reserve Price'). This is not necessarily a figure which a property will sell for and may change at any time prior to the auction. Every property will be offered subject to a Reserve Price (this is the sellers minimum expectation) which will be set within either a Guide Range or no more than 10% above a single figure Guide Price.

The Buyers Administration Fee of £1,500 (inclusive of VAT) is a separate charge payable in addition to the price a Lot sells for. In addition, the Guide Price does not include VAT on the sale price, or any additional costs, charges or encumbrances that might apply to some Lots and/or some buyers. The Special Conditions of Sale of the seller, and any applicable Addendum, will state if there are other costs, charges or encumbrances and whether the seller has elected to charge VAT on the sale price.

To participate in the sale, HMO X Auctions must hold a minimum amount from all bidders. This participation amount and administration fee are fully refundable in the event that you are not the successful purchaser. For example, a participation fee of £5,000 comprises £3,500 relating to your bidder security (which forms part of your 10% deposit payment) and the buyers administration fee of £1,500 (inclusive of VAT).

Please note that Lots may be sold or withdrawn prior to auction without prior notice.

Any information provided by HMO X Auctions or the seller, whether in writing or orally, does not constitute a representation, condition, or warranty. The information given is for illustrative purposes only and should not be considered as fact. Any mistakes, omissions, inaccuracies, or mis-descriptions in the information provided will not give rise to any legal action or compensation against HMO X Auctions or the seller.

All bidders must satisfy themselves by carrying out their own independent due diligence, inspections or otherwise as to the correctness of any and all of the information, statements, descriptions, quantity or measurements contained in any such sales particulars, webpage, brochure, catalogue, email, letter, report or hand out issued by or on behalf of HMO X Auctions or the seller.

Loading the bidding panel...

Financing

Looking to purchase at auction but need the right finance in place? We’ve partnered with Roma Finance to help our buyers secure fast and flexible funding solutions tailored for HMOs.

Get in touch with Roma Finance today to explore the best financing options for your next HMO purchase

HMO X - Roma Finance

Vendors Solicitor

Joy Savill
02075047071

Agreement Documents

Legal Documents

Log in to view legal documents

Related Documents

Make an Enquiry

Submit an enquiry and someone will be in contact shortly.

 
*  
*  
*
*
*

Share