Lot 12 - 42 Balliol Road, Portsmouth, Hampshire, PO2 7PR

  • Unconditional Online Auction Sale
  • Guide Price* : £195,000+
  • Bedrooms: 4
  • Bathrooms: 3
  • Reception Rooms: 1

A four bedroom, three bathroom licensed HMO, currently vacant

Description

• Freehold end-terrace house
• 4 bedrooms, 1 ensuite and 2 shared bathrooms
• Communal kitchen and living room
• Fully licenced with planning permission in place
• Add-value opportunity
• High-demand rental area for professional tenants
• Currently vacant, requiring some light cosmetic work before reletting

Location

Situated on the well-connected Balliol Road in Portsmouth, the property benefits from convenient access via the A2030 and A27. Providing direct routes to Portsmouth city centre, Queen Alexandra Hospital, and the University of Portsmouth. Set within a well-established residential area, it is close to a range of local amenities including shops, schools, and parks. The property also benefits from strong rental demand due to its proximity to major local employers, including the naval dockyard and key commercial centres.

Transport links are provided by both Fratton and Hilsea Rail Stations.

Planning

Planning granted through Portsmouth City Council ref: 17/00932/FUL

Change of use from Class C3 (dwellinghouse) to purposes falling within Class C4 (houses in multiple occupation) or Class C3 (dwellinghouse)

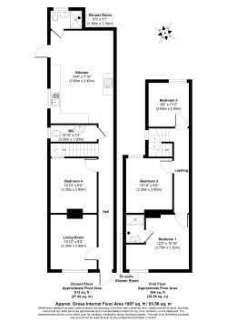
Accommodation

Ground Floor
Bedroom
Communal Kitchen
Communal Reception Room
2 Bathrooms

First Floor
Three Bedrooms
1 Ensuite Bathroom

Vendors Solicitor
Rizwan Shah
02089777633

* Guide Prices are provided as an indication of each seller's minimum expectation (also known as the 'Reserve Price'). This is not necessarily a figure which a property will sell for and may change at any time prior to the auction. Every property will be offered subject to a Reserve Price (this is the sellers minimum expectation) which will be set within either a Guide Range or no more than 10% above a single figure Guide Price.

The Buyers Administration Fee of £1,500 (inclusive of VAT) is a separate charge payable in addition to the price a Lot sells for. In addition, the Guide Price does not include VAT on the sale price, or any additional costs, charges or encumbrances that might apply to some Lots and/or some buyers. The Special Conditions of Sale of the seller, and any applicable Addendum, will state if there are other costs, charges or encumbrances and whether the seller has elected to charge VAT on the sale price.

To participate in the sale, HMO X Auctions must hold a minimum amount from all bidders. This participation amount and administration fee are fully refundable in the event that you are not the successful purchaser. For example, a participation fee of £5,000 comprises £3,500 relating to your bidder security (which forms part of your 10% deposit payment) and the buyers administration fee of £1,500 (inclusive of VAT).

Please note that Lots may be sold or withdrawn prior to auction without prior notice.

Any information provided by HMO X Auctions or the seller, whether in writing or orally, does not constitute a representation, condition, or warranty. The information given is for illustrative purposes only and should not be considered as fact. Any mistakes, omissions, inaccuracies, or mis-descriptions in the information provided will not give rise to any legal action or compensation against HMO X Auctions or the seller.

All bidders must satisfy themselves by carrying out their own independent due diligence, inspections or otherwise as to the correctness of any and all of the information, statements, descriptions, quantity or measurements contained in any such sales particulars, webpage, brochure, catalogue, email, letter, report or hand out issued by or on behalf of HMO X Auctions or the seller.

Loading the bidding panel...

Financing

Looking to purchase at auction but need the right finance in place? We’ve partnered with Roma Finance to help our buyers secure fast and flexible funding solutions tailored for HMOs.

Get in touch with Roma Finance today to explore the best financing options for your next HMO purchase

HMO X - Roma Finance

Vendors Solicitor

Rizwan Shah
02089777633

Agreement Documents

Legal Documents

Log in to view legal documents

Related Documents

Make an Enquiry

Submit an enquiry and someone will be in contact shortly.

 
*  
*  
*
*
*

Share