• Freehold mid-terrace house
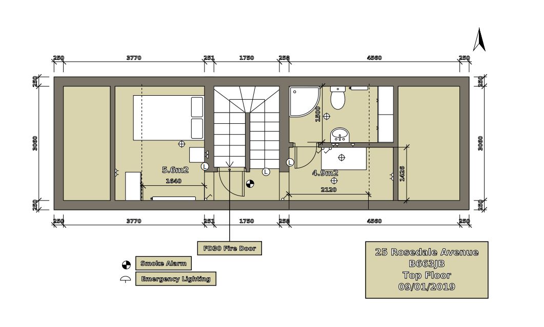
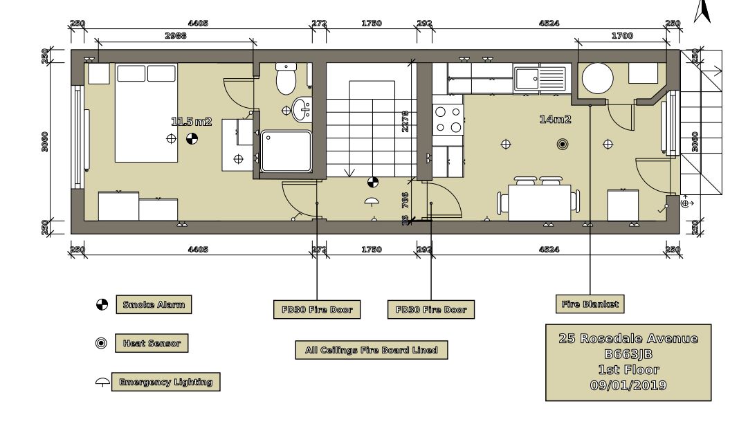
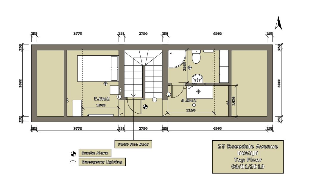
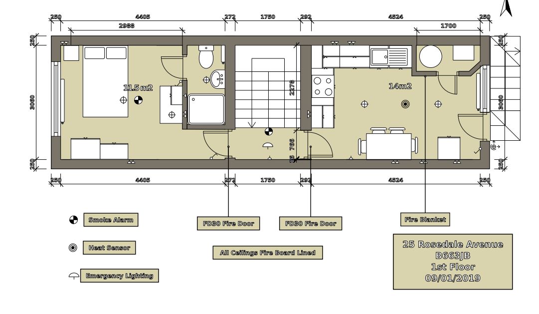
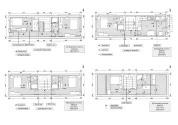
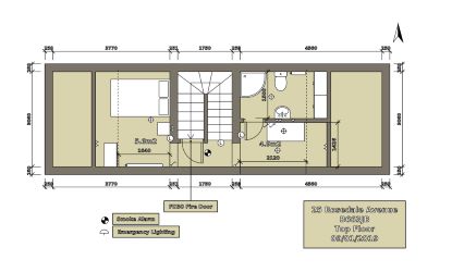
• 6 bedrooms, 5 bathrooms and an additional WC
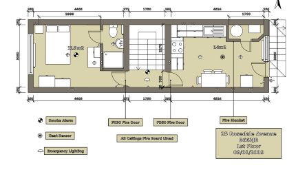
• Communal open plan kitchen and reception room
• Benefits from a rear garden
• Impressive gross yield of 13.5% on guide
• Fully managed HMO in a prime location
• Current rental income of £3,398 per month / £40,776 per annum
Smethwick, West Midlands is an established area for HMO investment, offering strong rental demand and attractive yields. Its location benefits from excellent connectivity, with Birmingham city centre just a few miles away and easy access to the M5 and M6, making it popular with professionals and commuters. The property is also located 3 minutes walk to the Midland Metropolitan University Hospital. The area also has a range of local amenities, schools, and transport links, while property prices remain relatively affordable, supporting healthy rental returns and consistent occupancy for well-managed HMOs.
- HMO Licence
- EPC
- EICR
- Fire Risk Assessment
- Fire Alarm Test Certificate
- Emergency Lighting Test Certificate
- Portable Appliance Test Report
- Gas Safety Certificate
Copies of these documents can be found within the legal pack.
| Room Number | Floor | Accommodation | Tenancy Info | Rent Per Annum |
|---|---|---|---|---|
| 1 | Ground | HMO room with access to communal kitchen, reception room and shared bathroom | 6 month AST starting from 29th July 2020 | £4,188 |
| 2 | Ground | HMO room with access to communal kitchen, reception room and shared bathroom | 6 month AST starting from 11th January 2024 | £6,900 |
| 3 | First | Ensuite HMO room with access to communal kitchen and reception room | 6 month AST starting from 1st September 2025 | £7,188 |
| 4 | Second | Ensuite HMO room with access to communal kitchen and reception room | 6 month AST starting from 1st December 2025 | £7,788 |
| 5 | Second | Ensuite HMO room with access to communal kitchen and reception room | 6 month AST starting from 29th July 2025 | £6,900 |
| 6 | Third | Ensuite HMO room with access to communal kitchen and reception room | 6 month AST starting from 14th April 2023 | £7,500 |
* Guide Prices are provided as an indication of each seller's minimum expectation (also known as the 'Reserve Price'). This is not necessarily a figure which a property will sell for and may change at any time prior to the auction. Every property will be offered subject to a Reserve Price (this is the sellers minimum expectation) which will be set within either a Guide Range or no more than 10% above a single figure Guide Price.
The Buyers Administration Fee of £1,500 (inclusive of VAT) is a separate charge payable in addition to the price a Lot sells for. In addition, the Guide Price does not include VAT on the sale price, or any additional costs, charges or encumbrances that might apply to some Lots and/or some buyers. The Special Conditions of Sale of the seller, and any applicable Addendum, will state if there are other costs, charges or encumbrances and whether the seller has elected to charge VAT on the sale price.
To participate in the sale, HMO X Auctions must hold a minimum amount from all bidders. This participation amount and administration fee are fully refundable in the event that you are not the successful purchaser. For example, a participation fee of £5,000 comprises £3,500 relating to your bidder security (which forms part of your 10% deposit payment) and the buyers administration fee of £1,500 (inclusive of VAT).
Please note that Lots may be sold or withdrawn prior to auction without prior notice.
Any information provided by HMO X Auctions or the seller, whether in writing or orally, does not constitute a representation, condition, or warranty. The information given is for illustrative purposes only and should not be considered as fact. Any mistakes, omissions, inaccuracies, or mis-descriptions in the information provided will not give rise to any legal action or compensation against HMO X Auctions or the seller.
All bidders must satisfy themselves by carrying out their own independent due diligence, inspections or otherwise as to the correctness of any and all of the information, statements, descriptions, quantity or measurements contained in any such sales particulars, webpage, brochure, catalogue, email, letter, report or hand out issued by or on behalf of HMO X Auctions or the seller.
Looking to purchase at auction but need the right finance in place?
We’ve partnered with VIBE Finance to help our buyers secure fast and flexible funding solutions tailored for HMOs.
Get in touch with VIBE Finance today to explore the best financing options for your next HMO purchase
HMO X - VIBE FinanceSubmit an enquiry and someone will be in contact shortly.
By setting a proxy bid, the system will automatically bid on your behalf to maintain your position as the highest bidder, up to your proxy bid amount. If you are outbid, you will be notified via email so you can opt to increase your bid if you so choose.
If two of more users place identical bids, the bid that was placed first takes precedence, and this includes proxy bids.
Another bidder placed an automatic proxy bid greater or equal to the bid you have just placed. You will need to bid again to stand a chance of winning.